Grant St. Development

The Development

2162 S Grant St is a new construction duplex offering two matching residences in Denver's South Broadway neighborhood. Each home spans 3,152 square feet across four finished levels, with 4 bedrooms, 4.5 bathrooms, and two dedicated parking spaces (one detached garage, one covered). Designed with Nordic architectural principles at its core, the project pairs clean lines, natural materials, and warm minimalism with the energy of one of Denver's most creative and connected corridors.

 

Architecture + Design

The exterior sets the tone with vertical wood siding, a curated color palette, and a sculptural slat facade that creates strong curb presence while maintaining an organic, inviting feel. Covered front patios and multiple indoor/outdoor connections support year-round living and entertaining.

 

Inside, the design language draws from Scandinavian traditions: soft woods, warm neutrals, natural stone, and layered architectural lighting. Every material selection is intentional. The result is a home that feels elevated and refined without being cold or overdone.

 

Living Spaces

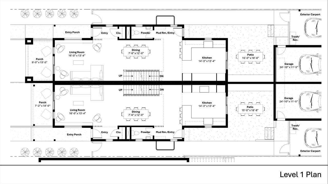
The main level features an open layout with a defined dining area, eat-in kitchen bar seating, and direct outdoor access for al fresco dining. The living area is anchored by a recessed modern electric fireplace, and expansive windows fill the space with natural light throughout the day. A mudroom at the entry adds everyday functionality for a home that lives as well as it looks.

 

The upper level includes a spacious primary suite with a large walk-in closet and a spa-style five-piece bathroom featuring vertical tile, natural textures, and refined fixtures. A secondary bedroom with its own en-suite full bath and upper-level laundry complete this floor.

 

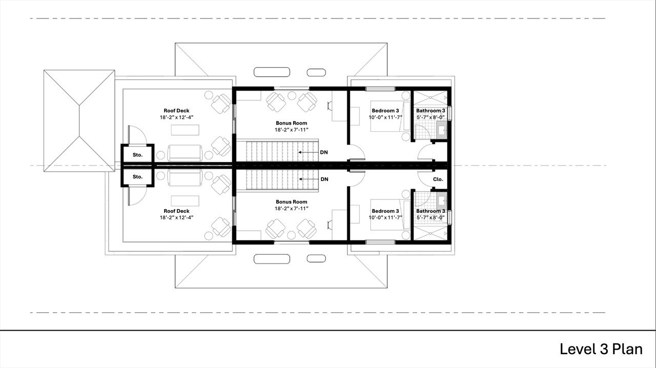
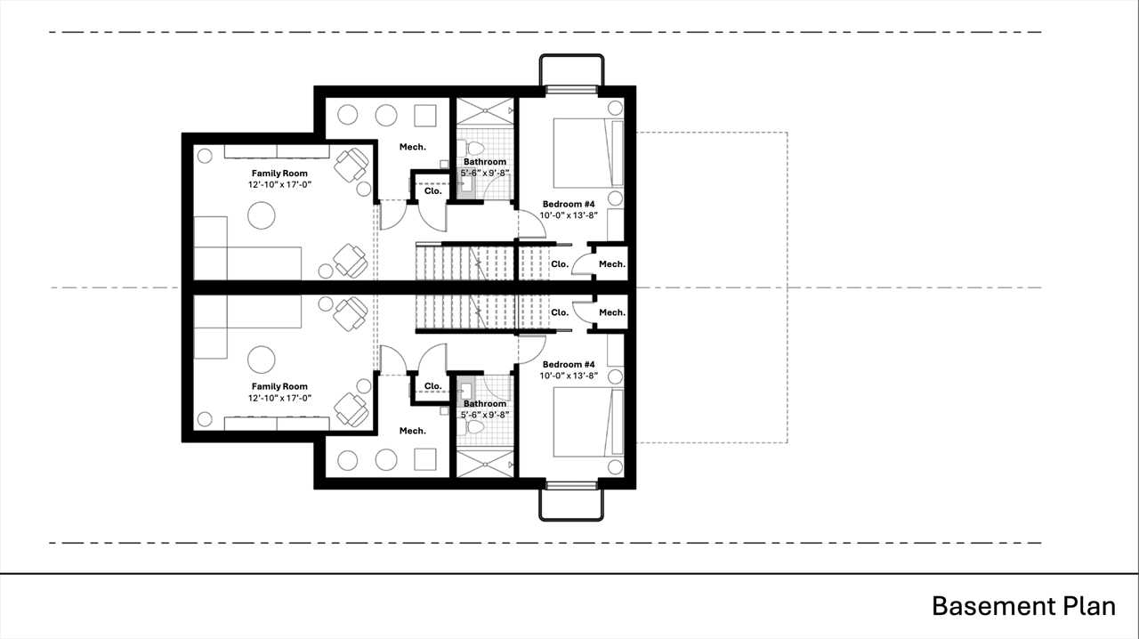
The third level offers a private suite and bonus room with direct access to a rooftop deck, well suited for flexible living, a dedicated work-from-home space, or outdoor entertaining with views. The finished basement expands the footprint further with a family room, a fourth bedroom, and a three-quarter bath.

 

The Kitchen

Kitchens at 2162 S Grant are designed around Scandinavian principles: warm stone countertops, solid slab backsplashes, clean-lined millwork, and a soft neutral palette that creates a calm, modern backdrop. Stainless steel appliances, electric induction cooking, an integrated hood design, and a built-in microwave keep the space functional and uncluttered. English bronze hardware and a pull-down faucet add refined detail without interrupting the clean aesthetic.

 

The Neighborhood: South Broadway (SoBo)

South Broadway is one of Denver's most walkable and culturally vibrant neighborhoods, known for its mix of locally owned coffee shops, restaurants, design retailers, cocktail bars, and creative businesses. From 2162 S Grant, residents are within a short walk of some of the corridor's most recognized destinations, including Corvus Coffee Roasters, Sushi Den and Izakaya Den, Platt Park Brewing Co., and Hazel Art Bar + Interiors.

 

Transit access is a major advantage of this location. The Evans Light Rail Station is approximately 0.3 miles away, and the Louisiana-Pearl Station is roughly 0.4 miles, providing convenient connections to Downtown Denver, LoDo, Union Station, and Denver International Airport. The property also offers quick access to Santa Fe Drive, I-25, the Denver Tech Center, and Cherry Creek.

 

Positioned at the intersection of Platt Park, Rosedale, University, and Washington Park, 2162 S Grant sits within reach of some of Denver's most established and sought-after residential areas. Nearby green spaces include Harvard Gulch Park and Recreation Center, Washington Park (with running trails, tennis courts, and lake access), and Harvard Gulch Golf Course.

 

Designed For

2162 S Grant appeals to buyers who prioritize architecture, intentional design, and a walkable urban lifestyle. The residences are well suited for design-conscious professionals, couples or young families looking to move up from condo or townhome living, out-of-state buyers relocating from markets like Los Angeles, Seattle, New York, or Chicago, and high-income renters ready to transition into ownership with a turnkey, elevated home.

 

The Nordic-influenced material palette, warm and minimal interior design, and the home's emphasis on function and comfort make it especially appealing to buyers who gravitate toward curated, architectural spaces over conventional new construction.

 

The Builder: Zisou Projects LLC

2162 S Grant St is built by Zisou Projects LLC, a Denver-based developer with a portfolio of thoughtfully designed new construction homes across the city. Zisou's completed projects reflect a consistent commitment to architectural detail, high-quality materials, and livable floor plans. While each Zisou project carries its own distinct aesthetic, the Grant St. development represents the firm's continued focus on bringing design-forward residences to Denver's most desirable neighborhoods.

 

Listing Information

2162 S Grant St is listed by Rachel Gallegos of The Edit + Co at Compass. Rachel is a Top 1% Compass Denver producer with 20 years of experience in the Denver real estate market. For inquiries, private showings, or additional details about this development, contact The Edit + Co directly.

 

Rachel Gallegos
The Edit + Co at Compass
[email protected]
720.308.2615
rachelgallegos.com

FAQ's

What is 2162 S Grant St in Denver?

2162 S Grant St is a new construction duplex in Denver's South Broadway (SoBo) neighborhood, offering two architect-designed residences with Nordic-inspired architecture. Each home is 3,152 square feet with 4 bedrooms, 4.5 bathrooms, four finished levels, and a rooftop deck.

 

What neighborhood is 2162 S Grant St in?

2162 S Grant St is located in the South Broadway corridor of Denver, Colorado (zip code 80210). The property sits at the intersection of several highly sought-after neighborhoods, including Platt Park, Rosedale, University, and Washington Park.

 

What is the architectural style of 2162 S Grant St?

The development features Nordic-inspired modern architecture with vertical wood siding, a sculptural slat facade, Scandinavian-influenced interiors, natural stone and warm wood material selections, and a design philosophy rooted in warm minimalism and quiet luxury.

 

How close is 2162 S Grant St to public transit?

The property is approximately 0.3 miles from the Evans Light Rail Station and 0.4 miles from the Louisiana-Pearl Light Rail Station, both of which provide direct connections to Downtown Denver, LoDo, Union Station, and Denver International Airport.

 

Who built 2162 S Grant St?

2162 S Grant St was built by Zisou Projects LLC, a Denver-based developer known for design-forward new construction homes across the city.

 

Who is the listing agent for 2162 S Grant St?

2162 S Grant St is listed by Rachel Gallegos of The Edit + Co at Compass. Rachel is a Top 1% Compass Denver producer with 20 years of Denver market experience. She can be reached at [email protected] or 720.308.2615.

 

What restaurants and shops are near 2162 S Grant St?

The property is within walking distance of Corvus Coffee Roasters, Sushi Den and Izakaya Den, Platt Park Brewing Co., Hazel Art Bar + Interiors, Devil's Food, and The Brutal Poodle, along with a wide selection of boutiques, design shops, and cocktail bars along the South Broadway corridor.

 

What parks are near 2162 S Grant St in Denver?

Nearby parks and outdoor amenities include Harvard Gulch Park and Recreation Center, Washington Park (with running trails, tennis courts, and lake access), and Harvard Gulch Golf Course.

 

  • Residences 2
  • Bedrooms 4 - 4
  • Bathrooms 5 - 5

Development Description

The Development

2162 S Grant St is a new construction duplex offering two matching residences in Denver's South Broadway neighborhood. Each home spans 3,152 square feet across four finished levels, with 4 bedrooms, 4.5 bathrooms, and two dedicated parking spaces (one detached garage, one covered). Designed with Nordic architectural principles at its core, the project pairs clean lines, natural materials, and warm minimalism with the energy of one of Denver's most creative and connected corridors.

 

Architecture + Design

The exterior sets the tone with vertical wood siding, a curated color palette, and a sculptural slat facade that creates strong curb presence while maintaining an organic, inviting feel. Covered front patios and multiple indoor/outdoor connections support year-round living and entertaining.

 

Inside, the design language draws from Scandinavian traditions: soft woods, warm neutrals, natural stone, and layered architectural lighting. Every material selection is intentional. The result is a home that feels elevated and refined without being cold or overdone.

 

Living Spaces

The main level features an open layout with a defined dining area, eat-in kitchen bar seating, and direct outdoor access for al fresco dining. The living area is anchored by a recessed modern electric fireplace, and expansive windows fill the space with natural light throughout the day. A mudroom at the entry adds everyday functionality for a home that lives as well as it looks.

 

The upper level includes a spacious primary suite with a large walk-in closet and a spa-style five-piece bathroom featuring vertical tile, natural textures, and refined fixtures. A secondary bedroom with its own en-suite full bath and upper-level laundry complete this floor.

 

The third level offers a private suite and bonus room with direct access to a rooftop deck, well suited for flexible living, a dedicated work-from-home space, or outdoor entertaining with views. The finished basement expands the footprint further with a family room, a fourth bedroom, and a three-quarter bath.

 

The Kitchen

Kitchens at 2162 S Grant are designed around Scandinavian principles: warm stone countertops, solid slab backsplashes, clean-lined millwork, and a soft neutral palette that creates a calm, modern backdrop. Stainless steel appliances, electric induction cooking, an integrated hood design, and a built-in microwave keep the space functional and uncluttered. English bronze hardware and a pull-down faucet add refined detail without interrupting the clean aesthetic.

 

The Neighborhood: South Broadway (SoBo)

South Broadway is one of Denver's most walkable and culturally vibrant neighborhoods, known for its mix of locally owned coffee shops, restaurants, design retailers, cocktail bars, and creative businesses. From 2162 S Grant, residents are within a short walk of some of the corridor's most recognized destinations, including Corvus Coffee Roasters, Sushi Den and Izakaya Den, Platt Park Brewing Co., and Hazel Art Bar + Interiors.

 

Transit access is a major advantage of this location. The Evans Light Rail Station is approximately 0.3 miles away, and the Louisiana-Pearl Station is roughly 0.4 miles, providing convenient connections to Downtown Denver, LoDo, Union Station, and Denver International Airport. The property also offers quick access to Santa Fe Drive, I-25, the Denver Tech Center, and Cherry Creek.

 

Positioned at the intersection of Platt Park, Rosedale, University, and Washington Park, 2162 S Grant sits within reach of some of Denver's most established and sought-after residential areas. Nearby green spaces include Harvard Gulch Park and Recreation Center, Washington Park (with running trails, tennis courts, and lake access), and Harvard Gulch Golf Course.

 

Designed For

2162 S Grant appeals to buyers who prioritize architecture, intentional design, and a walkable urban lifestyle. The residences are well suited for design-conscious professionals, couples or young families looking to move up from condo or townhome living, out-of-state buyers relocating from markets like Los Angeles, Seattle, New York, or Chicago, and high-income renters ready to transition into ownership with a turnkey, elevated home.

 

The Nordic-influenced material palette, warm and minimal interior design, and the home's emphasis on function and comfort make it especially appealing to buyers who gravitate toward curated, architectural spaces over conventional new construction.

 

The Builder: Zisou Projects LLC

2162 S Grant St is built by Zisou Projects LLC, a Denver-based developer with a portfolio of thoughtfully designed new construction homes across the city. Zisou's completed projects reflect a consistent commitment to architectural detail, high-quality materials, and livable floor plans. While each Zisou project carries its own distinct aesthetic, the Grant St. development represents the firm's continued focus on bringing design-forward residences to Denver's most desirable neighborhoods.

 

Listing Information

2162 S Grant St is listed by Rachel Gallegos of The Edit + Co at Compass. Rachel is a Top 1% Compass Denver producer with 20 years of experience in the Denver real estate market. For inquiries, private showings, or additional details about this development, contact The Edit + Co directly.

 

Rachel Gallegos
The Edit + Co at Compass
[email protected]
720.308.2615
rachelgallegos.com

FAQ's

What is 2162 S Grant St in Denver?

2162 S Grant St is a new construction duplex in Denver's South Broadway (SoBo) neighborhood, offering two architect-designed residences with Nordic-inspired architecture. Each home is 3,152 square feet with 4 bedrooms, 4.5 bathrooms, four finished levels, and a rooftop deck.

 

What neighborhood is 2162 S Grant St in?

2162 S Grant St is located in the South Broadway corridor of Denver, Colorado (zip code 80210). The property sits at the intersection of several highly sought-after neighborhoods, including Platt Park, Rosedale, University, and Washington Park.

 

What is the architectural style of 2162 S Grant St?

The development features Nordic-inspired modern architecture with vertical wood siding, a sculptural slat facade, Scandinavian-influenced interiors, natural stone and warm wood material selections, and a design philosophy rooted in warm minimalism and quiet luxury.

 

How close is 2162 S Grant St to public transit?

The property is approximately 0.3 miles from the Evans Light Rail Station and 0.4 miles from the Louisiana-Pearl Light Rail Station, both of which provide direct connections to Downtown Denver, LoDo, Union Station, and Denver International Airport.

 

Who built 2162 S Grant St?

2162 S Grant St was built by Zisou Projects LLC, a Denver-based developer known for design-forward new construction homes across the city.

 

Who is the listing agent for 2162 S Grant St?

2162 S Grant St is listed by Rachel Gallegos of The Edit + Co at Compass. Rachel is a Top 1% Compass Denver producer with 20 years of Denver market experience. She can be reached at [email protected] or 720.308.2615.

 

What restaurants and shops are near 2162 S Grant St?

The property is within walking distance of Corvus Coffee Roasters, Sushi Den and Izakaya Den, Platt Park Brewing Co., Hazel Art Bar + Interiors, Devil's Food, and The Brutal Poodle, along with a wide selection of boutiques, design shops, and cocktail bars along the South Broadway corridor.

 

What parks are near 2162 S Grant St in Denver?

Nearby parks and outdoor amenities include Harvard Gulch Park and Recreation Center, Washington Park (with running trails, tennis courts, and lake access), and Harvard Gulch Golf Course.

 

Basic Information

Year Completed
2026
Developer
Zisou Projects LLC
Stories
3
Living Space Range
3152 - 3152 Sq.Ft.
Lot size Range
3000 - 3000 Sq.Ft.

Features & Amenities

Downloads

  • Lookbook_2162 S Grant St_1.20.pdf

  • 2026 0220 2162 S GRANT ST - MATERIALS BOARD DRAFT.pdf

  • Pre-sale Look Book.pdf

Work With Us

We have a tireless work ethic, we are persistent, strategic and service-oriented with a focus on successfully guiding our clients to exceed their real estate goals.

Follow Me on Instagram